Le plan de votre PERGOLA sur mesure

Nous réalisons tous types de Plans de Pergola selon vos mesures et vos désirs. Ce dossier TECHNIQUE vous servira à CONSTRUIRE votre pergola vous-même.
- ContenuPlans et vues, nomenclature des matériaux, notice de montage pas à pas
- Les devis des artisans vous font hurler ?
- Les modèles de grandes surfaces sont moches ?
- et vous voulez une construction de qualité ?
- réellement adaptée à vos besoins ?
LA SOLUTION : faites-le vous-même !
Vous pouvez construire votre PERGOLA vous-même :
- c’est rapide : en général quelques jours suffisent,
- c’est pas cher : il n’y a quasiment que le prix du bois. Et nous avons une astuce pour acheter du bois de qualité et économique.
- c’est facile : grâce à nos plans conçus pour les néophytes. De plus, l’outillage est assez réduit.
Oui mais attention, pas question de jouer au bricolo du dimanche. Il faut faire les choses dans les règles de l’art, comme un professionnel. Et c’est à la portée d’un amateur bien informé.
Et pour cela, il vous faut des plans très détaillés et adaptés à votre habitation. Il faut modéliser toute la structure, penser aux moindres détails. Grâce à des plans de conception :
- vous n’oublierez rien le jour de passer à la construction,
- vous gagnerez du temps,
- aucune mauvaises surprises sur le chantier,
- vous aurez une vue de simulation de votre projet dans son environnement,
- cela vous donnera des idées et vous permettra d’améliorer le projet.
Autre point très important, votre construction doit être convenablement dimensionnée (sections et dimensions des éléments) selon la norme EUROCODE 5. Il y a de nombreux calculs à faire. Si vous surdimensionnez, vous allez dépenser de l’argent inutilement et obtenir un résultat esthétique de type "blockhaus". Si vous sous-dimensionnez, vous risquez de vous prendre la toiture sur la tête, blesser gravement quelqu’un (ou pire) et votre responsabilité serait engagée. Il faut dimensionner la structure selon les normes et les règles de l’art.
Plutôt que de faire des dépenses pour l’achat d’un logiciel de dessin, de passer un temps considérable à apprendre à le maîtriser, de vous poser mille questions, de tourner en rond, de vous tromper dans les calculs, de faire n’importe quoi et au final de vous décourager, confiez-nous votre projet.
Notre équipe est composée de dessinateurs experts en BTP, d’Ingénieurs et d’Architectes.
Grâce au dossier de plans que nous réalisons pour vous :
- vous aurez tous les éléments techniques pour construire votre abri vous-même,
- vous ne commettrez aucune erreur,
- vous gagnerez un temps considérable,
- vous ferez une économie incroyable : 10 fois moins cher que les tarifs d’un artisan,
- vous obtiendrez un abri haut-de-gamme comme si elle avait été réalisée par un PRO,
- vous aurez un résultat qui correspond exactement à ce que vous voulez,
- vous aurez la satisfaction d’avoir faire cela vous-même. Vos amis et votre famille vous féliciterons.
Et tout cela, pour le prix d’un bon resto pour deux personnes, ou d’un plein d’essence d’une berline, ou d’une place de concert, ou d’une paire de chaussure, etc.
Ce que le dossier contient :
Dans un court délai, généralement moins de 10 jours [1], nous réalisons un dossier COMPLET incluant :
- plusieurs plans et vues en 3D,
- une notice de montage pas à pas,
- une nomenclature des matériaux, c’est-à-dire votre liste des courses,
- une estimation du prix,
- une animation vidéo de votre projet.
Il nous faut 5 à 10 jours ouvrés [2] pour réaliser votre demande. Le dossier de conception que nous réalisons pour vous sera envoyé par email au format PDF.. Vous pouvez le consulter sur n’importe quel type d’ordinateur. Vous pouvez l’imprimer pour l’emporter avec vous, pour faire les courses, pour la réalisation sur chantier, pour le montrer à vos amis et proches.
Vues en 3D
Les vues en 3D vous permettent de visualiser votre projet terminé. Au moins trois vues différentes sont incluses.
Vues éclatées
Vous aurez une vue éclatée qui vous permettra de distinguer tous les éléments constituants votre pergola.
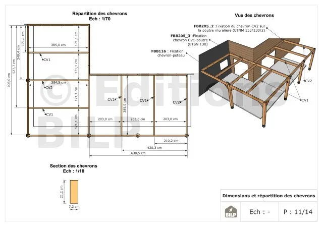
Plans de structure
Les plans de structure à l’échelle sont faciles à lire et à comprendre. Ils vous permettrons de réaliser vous-même la structure de votre pergola. Les détails de réalisation sont indiqués. Nous calculons et optimisons les dimensions et les sections de pièces de bois.
Liste de matériaux
La liste de matériaux vous permet d’estimer le prix final de votre pergola, et surtout de faire vos achats en toute sérénité, sans rien oublier. Vous ne courrez plus entre votre chantier et le marchand de matériaux.
Cette liste peut être envoyée directement à votre marchand de matériaux pour réalisation d’un devis. La liste est au format EXCEL. Vous pouvez donc l’éditer, la modifier, ajouter vos informations, etc.
Animation en 3D de votre future pergola
C’est la cerise sur le gâteau. Cette animation vous permet de visualiser votre projet dans l’espace, comme si vous y étiez.
Ainsi, vous pouvez apprécier le rendu final, vous rendre mieux compte des proportions, etc.
Voici une exemple d’animation :
Pour toutes demandes de renseignements, contactez Bruno au 05-82-95-48-37.
Les documents à nous envoyer :
Nous travaillons à partir de :
descriptif textuel de votre projet, quels sont vos désirs ?
des croquis ou photos du futur emplacement, cela nous permet de mieux comprendre et anticiper d’éventuelles difficultés,
éventuellement et de façon facultative, des dessins ou schémas réalisés à main-levée.
Nous sommes très souples. Nous nous adaptons à ce que vous pouvez nous fournir.
Le déroulement de la prestation
Le formulaire en ligne permet de passer commande. La prestation commence dés réception du paiement
Un technicien du Bureau d’Etude vous contacte pour vous demander quelques informations (pièces à fournir listée ci-dessous)
Si vous le désirez, vous pouvez demander un entretien téléphonique avec Bruno, de façon à mieux définir votre projet.
Dés réception de vos informations, un technicien se met au travail. Il peut être amené à vous contacter pour des compléments d’informations.
Le technicien vous envoie les premières esquisses. Vous pouvez donner vos avis, demander des modifications. Le technicien effectue les modifications selon vos souhaits.
Quand le dossier est achevé, nous vous envoyons votre dossier au format PDF, contenant toutes les vues et plans.
Il ne vous reste plus qu’à vous retrousser les manches et à passer à l’action !
Voulez-vous voir un EXEMPLE de dossier COMPLET ?
je peux vous l’envoyer GRATUITEMENT au format PDF. Il s’agit du dossier de conception d’une PERGOLA bioclimatique en ossature-bois. Peut-être que cela vous inspirera pour votre projet.
Et surtout, vous vous rendrez compte de la qualité de notre travail.
Pour cela, indiquez-moi votre adresse email pour que je puisse vous l’envoyer.
<squeeze1|campagne=p_pergola_prest_plans|art_retour=https://boutique.bilp.fr/article75|titre=OUI, envoyez-moi le lien pour télécharger le dossier de PERGOLA BIOCLIMATIQUE et envoyez-moi des informations utiles concernant la construction en Bois.|bouton=Je télécharge|campaign_token=89o4v|telephone=oui|image_thelia=46196>
Un exemple concret réalisé par un de nos clients
} :
Voici quelques photos des étapes de la réalisation :


































